Holiday Home Orlicke Mountains VC 0005 A

Two detached cottages standing next to each other, which are arranged mirror. The chats were in 2009 newly built and are absolutely ideal for two friendly families - right cottage has a code VC 0005… More information

  • 5 persons
  • 2 bedroom
  • Price from EUR: 638 for whole object
  • Price from EUR: 638 for apartment
  • Without pet
  • WiFi
  • Baby cot
  • Swimming pool
  • Sauna
  • TV
  • Ski lift within 5km
  • Restaurant within 1 km
  • Independently occupied
  • Fenced land
  • Description of accommodation

    Description of accommodation

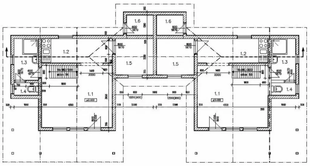
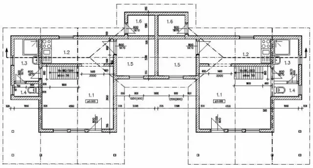
    Two detached cottages standing next to each other, which are arranged mirror. The chats were in 2009 newly built and are absolutely ideal for two friendly families - right cottage has a code VC 0005 A and the second cottage you will find under a code VC 0005 B. Entrance, hall, living room with sofa, dining table, satellite TV and DVD and the entrance to a roofed terrace. Open kitchen with electric stove, refrigerator/freezer, coffee maker, electric kettle and microwave oven. Bathroom with shower, separate toilet. In the attic (access by stairs from the lounge) there are two bedrooms with sliding door - one with double bed and second with double bed and one single bed. Gas heating. The garden is fenced, there is a covered garden furniture and garden fireplace for each house at disposal. Also (together for both cottages) there is a climbing frame with slide, swings, rope ladder, rope bridge and small climbing wall (for children), garden playhouse, sandbox, trampoline and a round pool with diameter 3,66 m and 0,85 m deep. Clients have a relaxing cottage with sauna at disposal (together for both cottages, in the high summer season - July/August - for a fee, during another periodes included in the price). Hot Tube (main season for a fee together with relaxing cottage, during other periods included in the price, together for both cottages) also at disposal (outside the period of severe frosts). Own parking lot inside the fenced garden (2 cars per cottage).

    Part of accommodation

    • Cheap chalets
    • With swimming pool
    • New Year’s Eve
    • Cottages in the mountains and wintersport
    • Weekend stays
    • Christmas
    • Easter

    Note on accommodation

    Baby cot on request. Wifi, bedlinen, towels and tea towels at disposal. Refundable deposit EUR 85,-. Consumption of gas, electricity and wood and fee for a relaxing cottage shall be paid on the spot as well as use of the Hot Tube in July/August. Cottage is suitable for maximum of 5 persons. Cottage can be also rented together with VC 0005 B.

    Price

    Summer season Winter season Holidays and New Year's Eve
    Week 788 € Week 718 € Christmas 802 € 
    Weekend stays are not available Weekend stays are not available New Year's Eve 813 €
  • Location description

    Location description

    In an Eagle Mountains, on the outskirts of the village Šanov u Červené Vody, about 5 km from the town Králíky. Cottages stands at an altitude of about 560 m above sea level, surrounded by a mountains and a beautiful view to a Suchý Vrch and Jeřáb (both about 1000 m high). Surroundings offers excellent conditions for hiking, biking and many various trips. There is a possibility of paragliding, tours of the border fortresses of 1935 - 1938. The unique location also offers a possibility of trips to Poland, both by car, by foot or by bike.
    Distances: Foods and supermarket (Červená Voda) 1 km, restaurant and tennis court in the town 200 m. Swimming (Králíky) 5 km, indoor swimming pool and golf courte (Žamberk) 32 km. Horse riding (Dolní Lipka) 8 km. Minigolf (Letohrad) 30 km. Swimming, beach, water sports, boat rental and the possibility of fishing (with permit) in a large reservoir Pastviny 20 km. The forest 1 km.
    Winter info: Ski resort in the village 300 m, a possibility of cross country skiing. Several well-known ski resorts within a radius of 10 km.

  • Photogallery
  • Rating

    Accommodation rating

    Overall rating of the object

    10.0

    Individual rating

    Satisfied with the location
    10.0
    Satisfied with cleanliness
    10.0
    Satisfied with the equipment
    10.0
    Satisfied with communication
    10.0
    • Pavel
      04.07.2020 - 11.07.2020
      10

  • Surroundings

    Points of interest in the area

  • Show us on map

    The location of the accommodation

    Location coordinates

    50.050549, 16.749407

  • Prices and availability
  • Přidejte si k víkendu více dní

    • Víkend + dny navíc
    • 8. 3. 2022 - 11. 3. 2022
    Cena víkendu 6 800 Kč
    Dny navíc 1 200 Kč
    Celková cena 8 000 Kč


Tips for trips

If you are not yet sure where your dream rental cottage is located, let yourself be inspired by our trip tips and discover the perfect place for your holiday in a cottage or chalet.

Who is InterBohemia

We have more than 30 years of experience in renting cottages and other recreational houses! Our specialization is in renting cottages and recreational houses across the entire Czech Republic, with a minority of houses also located in Slovakia. In 1990, we started as a Dutch company that offered accommodation in the Czech Republic for clients mainly from the Benelux, Germany and Great Britain. Over the years, the transformation from a Dutch company to a Czech one took place, when we successfully developed into a medium-sized organization offering a high-quality product of several hundred cottages and holiday houses with websites in four language versions. In addition to Czech clients, we also have clients from Germany, Holland and other European countries.

Kdo je Interbohemia